1st ISO Certified Interior Brand
400+ Satisfied Clients
15 Years of Experience
2 Years After-Sales Service
550+ Successful Projects
Calculate Interior Cost Free!
1st ISO Certified Interior Brand
400+ Satisfied Clients
15 Years of Experience
2 Years After-Sales Service
550+ Successful Projects
Calculate Interior Cost Free!

Scube Technology Office, Dhanmondi

  1. Home
  2. Project
  3. Scube Technology-Dhanmondi

Client / Company

Scube Technology

Project Duration

3 Months

Floor Area

3100 sq. ft.

Project Location

Dhanmondi

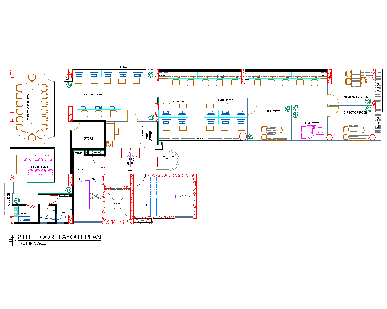
Scube Technology Office Design

Scube Technology’s Dhanmondi 27 office needed a tech workspace that balanced productivity, comfort, and client engagement. The project centered on an efficient layout that supports software development and includes essential amenities for a modern technology company.

Design Philosophy

The waiting area introduces Scube Technology’s culture, welcoming clients and visitors while reflecting expertise and professionalism. The arrangement prioritizes comfort through strategic seating, maintaining reception visibility, and offering privacy for confidential conversations.

WORKSTATION: Our workstation design addresses the specific needs of technology professionals by supporting focused individual work and collaborative problem-solving. The environment minimizes distractions to enhance concentration and facilitates easy communication among developers and project teams, enabling faster decision-making. The ergonomic layout promotes long-term comfort during extended periods of computer work, while flexible configurations enable teams to adapt seamlessly to shifting project requirements and team dynamics.

DINING AREA: The dining space serves dual purposes as both an employee break area and an informal collaboration zone. We designed this environment to foster team building and creative exchanges that often spark innovation in technology companies. The layout accommodates various group sizes while creating a relaxed atmosphere that contrasts with the focused intensity of development work, promoting a work-life balance essential for retaining tech talent.

CONFERENCE ROOM: We conceived the conference room as Scube Technology’s primary client presentation and strategic planning center. The design incorporates advanced presentation technology and acoustic treatment necessary for software demonstrations and technical discussions. The layout facilitates both formal client meetings and internal sprint planning sessions, with careful attention to sight lines and technology integration that supports modern software development methodologies.

FILE CABINET STORAGE: The design integrates storage seamlessly into the overall layout while ensuring easy access to project materials and compliance documentation essential for technology operations.

KITCHEN FACILITIES: The kitchen design supports employee wellness and informal collaboration, which are essential to creative technology work.

Calculate Cost