1st ISO Certified Interior Brand
400+ Satisfied Clients
15 Years of Experience
2 Years After-Sales Service
550+ Successful Projects
Calculate Interior Cost Free!
1st ISO Certified Interior Brand
400+ Satisfied Clients
15 Years of Experience
2 Years After-Sales Service
550+ Successful Projects
Calculate Interior Cost Free!

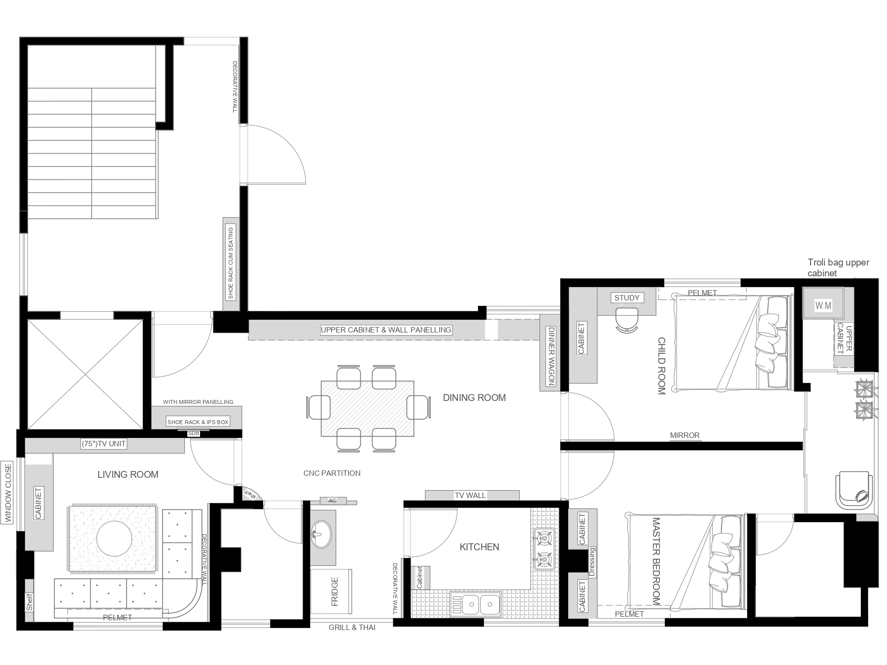
Mr. Sujon Mahmud's 1400 SQFT Home Interior- Elephant Road

  1. Home
  2. Project
  3. Mr. Sujon Mahmud’s 1400 SQFT Home Interior- Elephant Road

Client / Company

Mr. Sujon Mahmud

Project Duration

2 Months

Floor Area

1400 sq. ft.

Project Location

Elephant Road

Calculate Cost