1st ISO Certified Interior Brand
400+ Satisfied Clients
15 Years of Experience
2 Years After-Sales Service
550+ Successful Projects
Calculate Interior Cost Free!
1st ISO Certified Interior Brand
400+ Satisfied Clients
15 Years of Experience
2 Years After-Sales Service
550+ Successful Projects
Calculate Interior Cost Free!

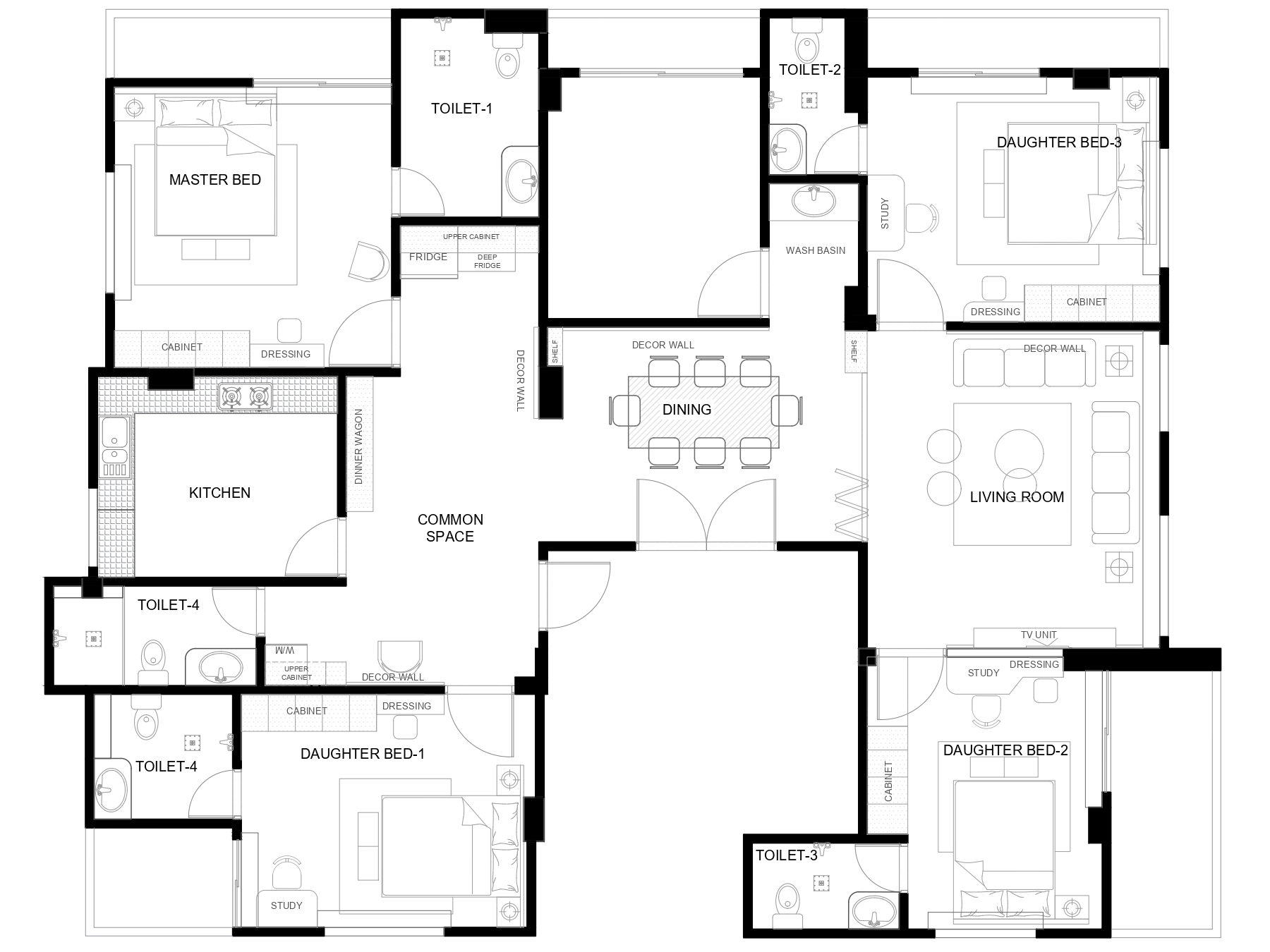
Mr. Sobuj Mia's 2200 SQFT Super Premium Interior- Savar

  1. Home
  2. Project
  3. Mr. Sobuj Mia’s 2200 SQFT Super Premium Interior- Savar

Client / Company

Mr. Sobuj Mia

Project Duration

4 Months

Floor Area

2,200 sq. ft.

Project Location

Savar

Calculate Cost