1st ISO Certified Interior Brand
400+ Satisfied Clients
15 Years of Experience
2 Years After-Sales Service
550+ Successful Projects
Calculate Interior Cost Free!
1st ISO Certified Interior Brand
400+ Satisfied Clients
15 Years of Experience
2 Years After-Sales Service
550+ Successful Projects
Calculate Interior Cost Free!

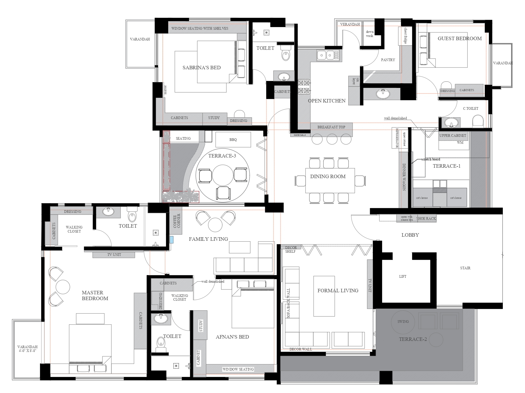
Mr. Sarfaraz's 2450 SQFT Apartment Interior- Bashundhara

Client / Company

Mr. Sarfaraz

Project Duration

4 Months

Floor Area

2450 sq. ft.

Project Location

Bashundhara

Mr. Sarfaraz’s residence in Bashundhara is a luxurious family apartment. It features exceptional outdoor space, including three separate terraces that extend the living areas. The layout features an upscale design, including a master bedroom with a walk-in closet and personalized children’s bedrooms for Sabrina and Afnan. The open kitchen concept reflects the premium residential standards typical of Bashundhara’s high-end developments.

Design Philosophy

Lift Lobby: We designed the lift lobby as an elegant arrival sequence that establishes the apartment’s sophisticated character from the moment residents and guests step off the elevator. The space creates impressive first impressions through premium material selections and refined spatial composition. These choices reflect the family’s lifestyle and the residence’s upscale positioning within Bashundhara’s residential landscape.

Formal Living Room: The formal living room serves as the residence’s premier social space. Here, the family entertains important guests and celebrates significant occasions. We created sophisticated environments through carefully composed furniture arrangements, refined lighting schemes, and premium decorative elements. These choices communicate success and cultural values. The design prioritizes gracious conversation and impressive spatial character while maintaining connections to Terrace-02, which extends entertaining possibilities outdoors.

Terrace 2: The second terrace extends the formal living area outdoors. It creates a valuable al fresco entertaining space that enhances the apartment’s luxury lifestyle offerings. We designed this outdoor zone to support morning coffee in the sun, secluded reading, small family lunches, or lively evening gatherings. It provides access to fresh air, natural light, and semi-private outdoor living—benefiting from Bashundhara’s relatively open urban environment.

The dining area is dedicated to both family meals and formal entertaining. We enhanced the meal experience with elegant furniture and spatial planning that supports interaction. The design provides easy connections to the open kitchen and terraces, allowing flexible dining options.

Open Kitchen: We designed the open kitchen as a contemporary culinary workspace. It integrates visually with dining and living areas, reflecting modern preferences for social cooking and family interaction. The layout incorporates premium appliances, ample counter space, and sophisticated aesthetic treatments. It maintains visual continuity with adjacent spaces and provides comprehensive cooking capabilities. The open concept lets the cook join family conversations and entertain guests while preparing meals.

Pantry: The dedicated pantry provides essential storage and food preparation support. It enhances the functionality of the open kitchen. We designed and organized storage solutions for bulk groceries, small appliances, and service items. The pantry helps maintain the kitchen’s clean aesthetic by concealing utilitarian storage requirements.

Terrace 1: The first terrace creates additional outdoor living space and is ideally suited for private family relaxation or casual gatherings, distinguishing it from Terrace-02, which may be better suited for formal entertaining. The multiple-terrace configuration offers an exceptional range of outdoor living options, which is rare in urban apartments.

Family Living: The family living room serves as a relaxed daily gathering space, distinct from formal entertaining zones. It creates comfortable environments for television viewing, casual conversation, and family activities. We used practical furnishings and durable materials that accommodate children’s activities. The design maintains aesthetic quality and connects to Terrace-03 for easy outdoor access during family time.

Terrace-03: The third terrace extends the family living area outdoors. Unlike the more formal terraces designed for entertaining guests, this terrace provides a relaxed setting specifically for everyday family activities. It functions as a versatile space for children’s play, informal meals, and unwinding in the evening, maximizing the apartment’s livability through generous outdoor access.

Master Bedroom: The master bedroom serves as Mr. Sarfaraz’s luxurious private sanctuary, offering comprehensive retreat functions through substantial spatial planning. Sophisticated environments strike a balance between sleeping comfort and personal relaxation zones, reinforced by premium materials and refined aesthetics. Generous proportions accommodate multiple functional areas within the suite, while a peaceful atmosphere ensures quality rest.

Master Bedroom Walking Closet: The walk-in closet elevates the master suite to the standards of a luxury hotel. It provides organized clothing storage and dressing functions in a dedicated space separate from the sleeping area. We designed efficient storage solutions for extensive wardrobes. The closet creates a pleasant dressing environment that enhances daily routines and keeps the bedroom organized.

Master Bedroom Toilet: The master ensuite bathroom provides spa-inspired private hygiene facilities. Its luxurious design incorporates premium fixtures and sophisticated material selections. We created serene environments to support both morning preparation and evening relaxation. The sanctuary atmosphere of the master suite is maintained throughout.

Sabrina’s Bedroom: We designed Sabrina’s personalized bedroom to reflect her unique personality and individual needs. It provides comprehensive functions for sleeping, studying, and personal activities. The design balances feminine preferences with practical requirements, including a study area for academic success, storage for belongings, and comfortable sleeping arrangements. This personalization demonstrates parental commitment to ensuring each child enjoys spaces that support their unique identity and interests.

Sabrina’s en-suite bathroom offers privacy and promotes independence with suitable, modern facilities tailored to her needs.

Afnan’s Bedroom: Afnan’s personalized bedroom offers thoughtful accommodations tailored to his needs and preferences. It maintains quality comparable to his sister’s space. We created environments that support his academic, personal, and developmental requirements. These include appropriate furniture, study areas, and storage reflecting his interests and personality.

Afnan’s ensuite bathroom provides private hygiene facilities to promote his independence and sense of personal space.

Guest Bedroom: The guest bedroom provides comfortable temporary accommodation for visiting family and friends. It maintains quality standards consistent with the residence’s luxury character. We designed a welcoming space that ensures visitors enjoy comfortable stays, reflecting the family’s values of hospitality. During periods with no overnight guests, the room can serve as an alternative function.

Calculate Cost