1st ISO Certified Interior Brand
400+ Satisfied Clients
15 Years of Experience
2 Years After-Sales Service
550+ Successful Projects
Calculate Interior Cost Free!
1st ISO Certified Interior Brand
400+ Satisfied Clients
15 Years of Experience
2 Years After-Sales Service
550+ Successful Projects
Calculate Interior Cost Free!

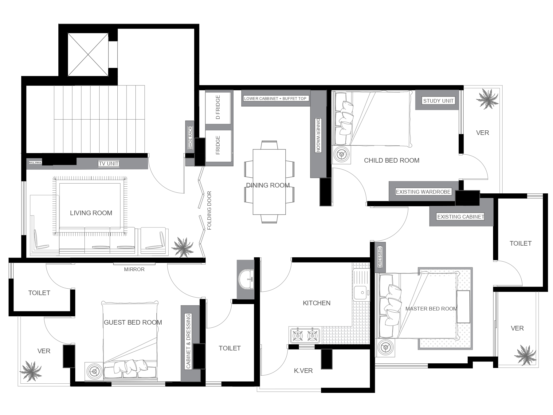
Mr. Sajib's 1355 SQ FT Premium Interior- Basabo

  1. Home
  2. Project
  3. Mr. Sajib- Basabo

Client / Company

Mr. Sajib

Project Duration

2 Months

Floor Area

1355 sq. ft.

Project Location

Basabo

Calculate Cost