1st ISO Certified Interior Brand
400+ Satisfied Clients
15 Years of Experience
2 Years After-Sales Service
550+ Successful Projects
Calculate Interior Cost Free!
1st ISO Certified Interior Brand
400+ Satisfied Clients
15 Years of Experience
2 Years After-Sales Service
550+ Successful Projects
Calculate Interior Cost Free!

Mr. Abdur Rahman's 2200 SQFT Super Luxury Interior- Gulshan

  1. Home
  2. Project
  3. Mr. Abdur Rahman’s 2200 SQFT Super Luxury Interior- Gulshan

Client / Company

Mr. Abdur Rahman

Project Duration

4 Months

Floor Area

2200 sq. ft.

Project Location

Gulshan

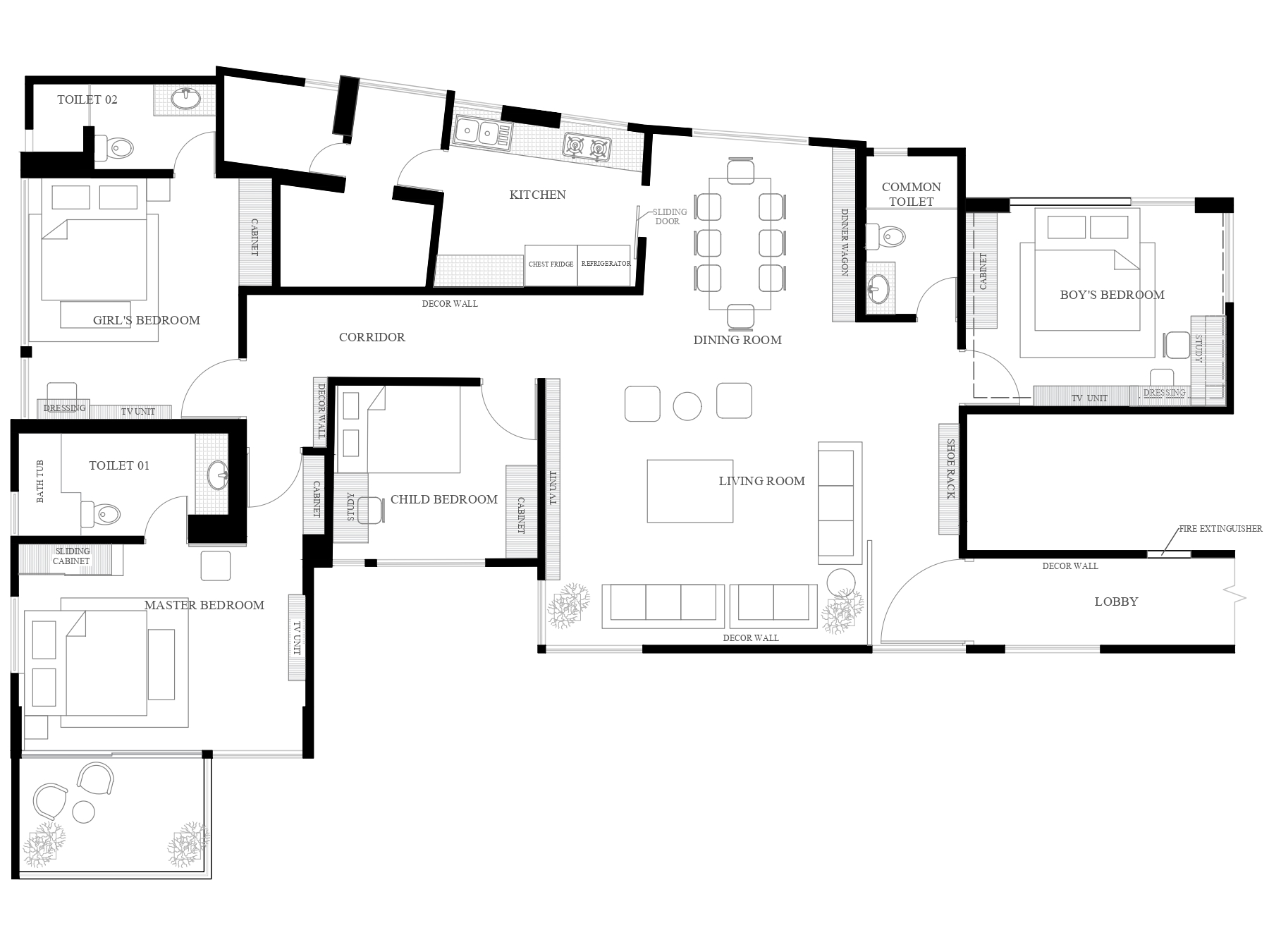
Mr. Abdur Rahman’s residence in Gulshan-08 is a comprehensive family apartment. It features dedicated bedrooms for multiple children, including specifically designated girl and boy rooms, as well as an additional child bedroom. The layout shows thoughtful circulation through a prominent corridor design and an entry sequence with a dedicated foyer. These elements reflect upscale standards typical of Gulshan’s prestigious address.

Design Philosophy

Foyer: We designed the foyer as an elegant entry sequence. It establishes the apartment’s sophisticated character and facilitates the transition from the building corridor to a private family domain. The space makes an impressive first impression through its refined material selections, thoughtful lighting, and well-composed spatial arrangement. The dedicated foyer provides practical functions, such as visitor reception and initial orientation, while setting aesthetic expectations for the home’s interior quality.

Living Room: The living room serves as the residence’s primary social centerpiece. It accommodates both family relaxation and guest entertaining. We created versatile environments through carefully composed furniture arrangements and elegant aesthetic treatments. The design balances everyday family functionality with impressive presentation for hosting. It supports various activities, from television viewing to conversation, while maintaining a refined character suitable for Gulshan’s upscale context.

Dining Room: The dining area offers a dedicated space for family meals and entertaining guests. We created environments that enhance meal experiences and facilitate social interaction during dining. This is achieved through the selection of appropriate furniture and effective spatial planning. The design supports various dining scenarios, from intimate family meals to extended gatherings with guests, while maintaining convenient connections to kitchen functions.

Corridor: We designed the corridor as an important circulation element that connects various residential zones. It contributes to the spatial experience, not serving merely functional purposes. The prominent corridor treatment demonstrates attention to transition spaces and the quality of internal circulation. Appropriate lighting and material selections maintain aesthetic continuity throughout the apartment, efficiently managing traffic flow between living areas and private zones.

Master Bedroom: The master bedroom offers Mr. Abdur Rahman a luxurious, private sanctuary. It has substantial spatial planning to accommodate sleeping, dressing, and personal retreat functions. We created a sophisticated environment that offers both comfort and functionality. Premium material selections and refined aesthetics ensure a peaceful atmosphere and privacy from household activities and children’s areas.

Master Bedroom Toilet: The master ensuite bathroom provides private hygiene facilities through thoughtful layout planning. It accommodates full bathroom functions while maintaining contemporary luxury standards. We created serene environments that support both morning preparation and evening relaxation. User comfort and privacy are ensured, making this space suitable for the master bedroom suite.

Girl’s Bedroom: We created the daughter’s personalized bedroom to meet her specific needs and preferences. It provides comprehensive functions for sleeping, studying, and personal development. The design thoughtfully incorporates feminine preferences as well as practical educational requirements. Study areas support academic success, and there is adequate storage for clothing and belongings, as well as comfortable sleeping arrangements. The gender-specific designation demonstrates parental commitment to providing each child with an environment that respects their individual needs.

Girl’s Toilet: The daughter’s private bathroom provides her with a space for self-care and privacy, while maintaining modern standards for her age. The bathroom helps her have her own space within the family.

Boy’s Bedroom: The son’s bedroom provides equally thoughtful accommodations for his individual needs and interests. It maintains comparable quality to his sister’s space. We created environments that support his academic, personal, and developmental requirements. Appropriate furniture selections, study capabilities, and storage solutions reflect his unique personality and preferences.

Child Bedroom: The additional child bedroom offers a flexible design for another family member. It serves varying age and functional requirements. We created versatile spaces that balance personal expression with practical needs, including comfortable sleeping areas, study spaces, and adequate storage. All children enjoy equitable accommodation quality that supports their individual development within the family home.

Kitchen: We designed the kitchen as an efficient culinary workspace for family meal preparation and entertaining. The layout includes practical workflow planning, modern appliances, and organized storage solutions. These features facilitate cooking while maintaining functionality. The design ensures sufficient counter space and storage capacity to meet the household’s needs and support a family lifestyle, as well as occasional hosting.

Calculate Cost