1st ISO Certified Interior Brand
400+ Satisfied Clients
15 Years of Experience
2 Years After-Sales Service
550+ Successful Projects
Calculate Interior Cost Free!
1st ISO Certified Interior Brand
400+ Satisfied Clients
15 Years of Experience
2 Years After-Sales Service
550+ Successful Projects
Calculate Interior Cost Free!

Mr. Mohiuddin's 1120 SQFT Apartment Interior- Farmgate

  1. Home
  2. Project
  3. Mr. Mohiuddin’s 1120 SQFT Apartment Interior- Farmgate

Client / Company

mr. Mohiuddin

Project Duration

2 Months

Floor Area

1120 sq. ft.

Project Location

Farmgate

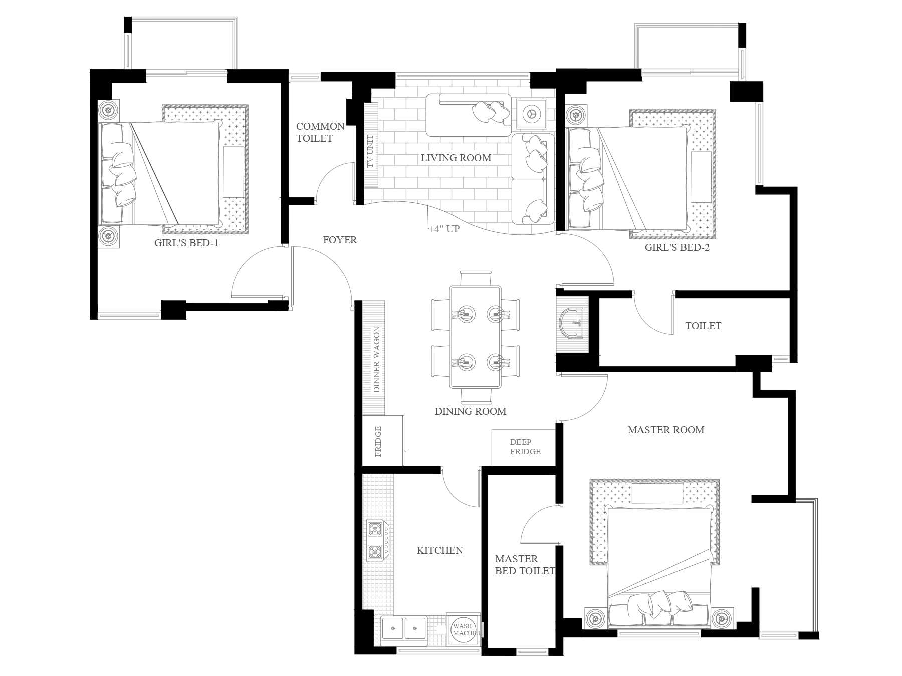
Mr. Mohiuddin’s residence in Rajabazar, Farmgate, features a refined apartment design centered on social spaces, with sophisticated ceiling treatments that add architectural interest throughout. The layout emphasizes formal presentation with dedicated foyer, living, and dining areas that reflect an urban professional lifestyle in the central Dhaka location.

Design Philosophy

Foyer: We designed the foyer as an elegant entry sequence that establishes the apartment’s refined character and facilitates the transition from the building corridor to the private residence. The space creates an impressive first impression through premium material selections and sophisticated spatial composition, reflecting the professional lifestyle suitable for the Farmgate area. The dedicated ceiling treatment elevates the foyer beyond simple circulation, transforming the entry into an architectural experience that welcomes residents and guests while setting expectations for the interior quality throughout the apartment.

Foyer Ceiling: The foyer ceiling design incorporates architectural treatments that add vertical interest and lighting opportunities, creating visual drama in the entry sequence. We employed ceiling articulation to enhance spatial definition and establish a consistent design vocabulary throughout the social areas.

Living Room: We designed the living room as the apartment’s social centerpiece, accommodating both relaxed family life and entertaining guests. The layout creates comfortable environments through thoughtful furniture arrangements and aesthetic treatments that balance everyday functionality with presentable hosting capabilities. The space serves multiple purposes, from television viewing to conversation, adapting to various social occasions while maintaining visual appeal and comfort standards appropriate for professional urban living.

Dining Room: The dining area provides a dedicated space for meal service, accommodating both daily family meals and entertaining guests. We enhance meal experiences by strategically selecting furniture and thoughtfully planning the space to facilitate conversation and social interaction during dining occasions. The design seamlessly integrates with kitchen functions and visually blends with living areas.

Living & Dining Room Ceiling: The unified ceiling treatment across living and dining areas fosters architectural continuity. It visually connects the social spaces and adds design interest overhead. We layered lighting opportunities and articulated the ceiling to define spaces. This approach enhances the apartment’s sophisticated character and maintains practical illumination for various activities and occasions.

Kitchen: We designed the kitchen as an efficient workspace that supports meal preparation within the apartment’s compact footprint. The layout optimizes available space through careful planning that incorporates essential appliances, adequate counter surfaces, and organized storage solutions. The design strikes a balance between functional culinary requirements and aesthetic presentation, ensuring the kitchen meets practical cooking needs while maintaining visual harmony with adjacent dining areas.

Calculate Cost