1st ISO Certified Interior Brand
400+ Satisfied Clients
15 Years of Experience
2 Years After-Sales Service
550+ Successful Projects
Calculate Interior Cost Free!
1st ISO Certified Interior Brand
400+ Satisfied Clients
15 Years of Experience
2 Years After-Sales Service
550+ Successful Projects
Calculate Interior Cost Free!

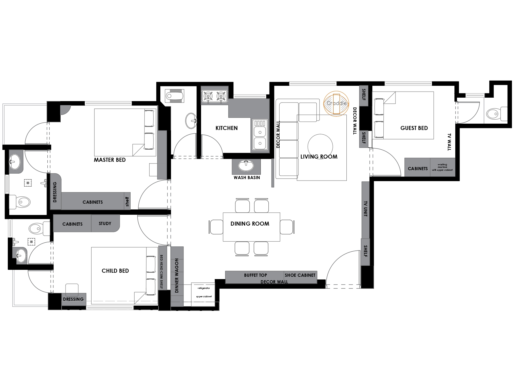
Mrs. Sonia's 980 SQFT Premium Home Interior- Vasantek

  1. Home
  2. Project
  3. Mrs. Sonia’s 980 SQFT Premium Home Interior- Vasantek

Client / Company

Miss Sonia

Project Duration

1 Months

Floor Area

980 sq. ft.

Project Location

Vasantek

Mrs. Sonia’s residence showcases a practical family living design with interesting flexibility in the master bedroom configuration, offering two distinct options that allow for personalization of the most important private space. The dining ceiling treatment and comprehensive guest accommodation demonstrate thoughtful attention to both everyday family life and hospitality needs. A well-rounded, comfortable family home design.

Design Philosophy

Living Room: We designed the living room as the residence’s social centerpiece, accommodating both family relaxation and guest entertaining through versatile spatial planning. The layout creates comfortable environments for television viewing, conversation, and family gatherings through practical furniture arrangements and warm aesthetic treatments. The design strikes a balance between everyday functionality and presentable hosting capabilities, ensuring the space serves multiple purposes while maintaining a visual appeal and comfort for daily family life.

Dining Room: The dining area offers a dedicated space for meal service, accommodating family dining and guest entertaining through thoughtful furniture selection and strategic spatial planning. We incorporated ceiling design treatments that add architectural interest while defining the dining zone within the open living areas. The layout ensures convenient service connections to kitchen functions while creating a pleasant dining atmosphere that enhances meal experiences and fosters family togetherness.

Children’s Bedroom: The children’s bedroom adapts to their developmental needs, providing flexible, age-appropriate spaces for sleep, study, and play. Functional areas balance education and personal expression, with storage, comfortable study zones, and sleeping arrangements supporting rest and growth.

Guest Bed: The guest bedroom offers comfortable temporary accommodation for visiting family and friends while maintaining versatile functionality when not in use. We designed an adaptable space that efficiently serves visitor needs while potentially accommodating alternative uses, such as a home office, hobby room, or additional storage, which supports household requirements during periods without overnight guests.

Kitchen: We designed the kitchen as an efficient workspace that supports meal preparation and family nutrition through practical layout planning, optimizing workflow, and storage. The design incorporates modern conveniences and organized solutions that facilitate cooking while maintaining clean, functional environments that serve the family’s daily culinary needs and occasional entertaining requirements.

Calculate Cost