1st ISO Certified Interior Brand
400+ Satisfied Clients
15 Years of Experience
2 Years After-Sales Service
550+ Successful Projects
Calculate Interior Cost Free!
1st ISO Certified Interior Brand
400+ Satisfied Clients
15 Years of Experience
2 Years After-Sales Service
550+ Successful Projects
Calculate Interior Cost Free!

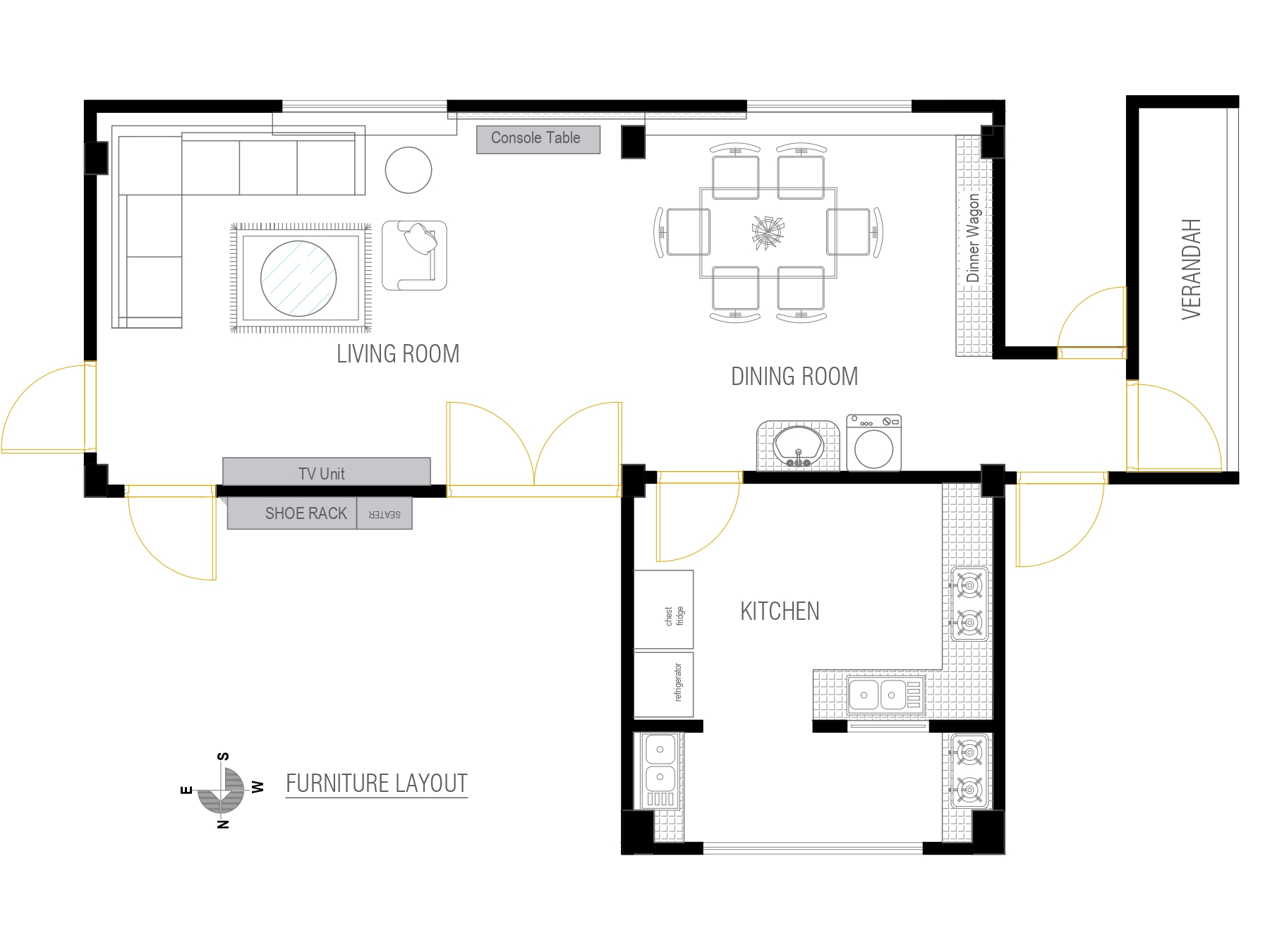
Mr. Javed's 775 SQFT Apartment Interior- Jessore

  1. Home
  2. Project
  3. Javed, Jessore

Client / Company

Javed,

Project Duration

1 Months

Floor Area

775 sq. ft.

Project Location

Jessore

Calculate Cost